
家用別墅電梯: 載重:200kg-500 kg 材質:304#鏡面/發紋不銹鋼--鋼化玻璃--鈦鎂合金--鈦金蝕刻 控制方式:數顯控制 售后:質保一年、終...
訂購電話:187-6641-6631



家用別墅電梯:
載重:200kg-500 kg
材質:304#鏡面/發紋不銹鋼--鋼化玻璃--鈦鎂合金--鈦金蝕刻
控制方式:數顯控制
售后:質保一年、終身提供維修服務
驅動系統:液壓驅動;
運行方式:液壓本泵站控制;
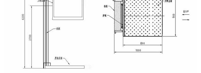
安裝方式:廠家包含安裝一般無需底坑
外控裝置:外呼盒分別安置于設備上、下停層附近墻面
安全聯鎖:任何非正常操作時,電梯不能運行;
緊急下降:無電或故障時,手動下降裝置.如果安裝了應急平層裝置可用應急平層可以繼續下降到就近層站平層停止。

