
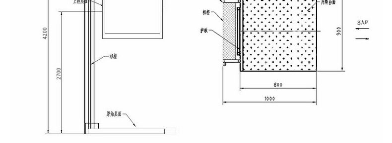
曳引家用電梯或別墅電梯:井道及地坑、轎廂、層站部分;主要部件:曳引系統、導向系統、門系統、轎廂、重量平衡系統、電器控制系統...
訂購電話:187-6641-6631



曳引家用電梯或別墅電梯:井道及地坑、轎廂、層站部分;主要部件:曳引系統、導向系統、門系統、轎廂、重量平衡系統、電器控制系統、安全保護系統,電氣方面的安全保護在電梯的各個運行環節都有,這種電梯同小區電梯相同。安靜平穩、價格經濟、乘坐舒適,方便殘疾人和老年人使用豪華高檔的家居電梯。
家用升降機不僅方便通行,也是現代化社會發展的一種標志,它可以安裝在私人別墅、復式建筑中,方便家庭成員上下樓。如果是復式樓房或者小型別墅、空間別墅,建議你選擇小型家用電梯,小巧靈活,易安裝,省空間。小型家用電梯極易融入家庭建筑空,對于那些預留空間有限,任何不能容納傳統電梯的狹小地方,但又必須有一臺電梯的現有住宅來說,這類家用電梯是改善現況的理想選擇方案。